Mondara : Keramas Villas
Location — why Keramas?
Keramas is one of Bali’s most promising coastal destinations, known for its natural beauty, tranquility, and growing appeal as a luxury lifestyle location. Situated just minutes from Keramas Beach and Saba Beach, the area offers breathtaking ocean views, black sand beaches, and a peaceful atmosphere away from the crowds.
Well connected to Ubud and Sanur, Keramas combines serene coastal living with convenient access to Bali’s cultural and lifestyle destinations. Its rising popularity among international visitors and property investors makes it an ideal location for both luxury living and long-term investment.
With its untouched surroundings, surf culture, and expanding infrastructure, Keramas presents a rare opportunity to experience authentic Bali while securing property in one of the island’s emerging premium areas.


Mondara : Keramas Villas
Our Project
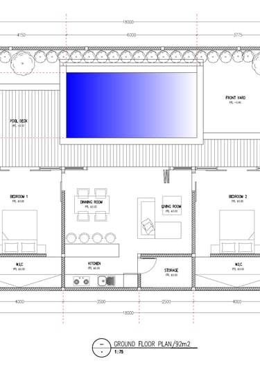
Two-Bedroom Villa
This thoughtfully planned two-bedroom villa is designed to balance modern tropical architecture with comfort and functionality. Expansive floor-to-ceiling glass doors connect the interior living spaces to a private pool deck, creating a seamless indoor–outdoor flow that defines contemporary Bali living.
Each bedroom is positioned to maximize privacy while maintaining direct visual and physical connection to the landscaped outdoor areas. High ceilings, warm natural materials, and carefully considered spatial planning enhance natural light and ventilation throughout the villa.






